双法兰片式荷重传感器是一种两端带法兰结构的力敏检测装置,通过法兰连接受力部件,利用弹性体受力形变转化为电信号,实现对压力、拉力等荷重的测量。其安装便捷、抗偏载能力较强,适用于大型设备称重、结构件受力监测等场景,能稳定输出力值数据,保障系统可靠运行。控制精度不高,性相对稳定,结构特征封口性好。
大面积应用于混凝土、煤碳等各类业的网上轿车衡、铁轨衡、app秤十分他各类秤重、测力的轻自动化技术体统化自动测量操作体统。
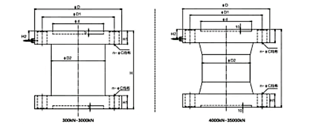
| 分度值(KN) | 测量范围(t) | D | D1 | D2 | d | H | H1 | H2 | n-ΦC |
| 300 | 30 | 145 | 120 | / | 85 | 130 | 22 | 15 | 12-Φ16 |
| 500,600 | 50,60 | 197 | 160 | / | 110 | 160 | 25 | 15 | 12-Φ22 |
| 1000 | 100 | 240 | 200 | / | 135 | 230 | 42 | 28 | 12-Φ26 |
| 1500-2500 | 150-250 | 305 | 250 | / | 160 | 326 | 57 | 45 | 12-Φ32.5 |
| 3000 | 300 | 415 | 360 | / | 256 | 358 | 69 | 50 | 18-Φ32.5 |
| 4000 | 400 | 415 | 360 | / | 265 | 358 | 80 | / | 15-Φ32 |
| 5000 | 500 | 415 | 360 | / | 256 | 398 | 69 | 45 | 18-Φ32 |
| 10000 | 1000 | 600 | 510 | / | 352 | 480 | 110 | / | 20-Φ45 |
| 25000(A) | 2500(A) | 700 | 610 | / | / | 800 | 240 | / | 24-Φ45 |
| 25000(B) | 2500(B) | 640 | 550 | / | 280 | 600 | 150 | / | 20-Φ45 |
| 35000 | 3500 | 700 | 610 | / | 335 | 800 | 240 | / | 24-Φ45 |
传感器接线示意图: 传感器受力图:


| 参 数 | 技术参数 | 参 数 | 技术参数 |
| 量程 | 350KN~35000KN | 适用温度范围 | -20~70℃ |
| 综合精度 | 0.2%FS | 安全过载 | 120%FS |
| 灵敏度 | 2.0mV/V | 极限过载 | 200%F·S |
| 零点输出 | ≤1%FS | 推荐激励电压 | 10VDC |
| 输入阻抗 | 780±30Ω | 电缆 | 5m |
| 输出阻抗 | ±0.03%FS | 材质 | 优质合金钢 |
| 绝缘电阻 | ≥5000MΩ | 接线方式 | 红:E+ 电源正,黑:E- 电源负 绿:S+ 信号正,白:S- 信号负 |
| 密封等级 | IP67 | 材质 | 合金钢、不锈钢 |
1.J9.COM为客户提供安装调试服务,以及其他技术咨询,必要时技术人员可上门提供技术培训。客户如有技术上疑问,技术人员将在4个小时内给出回复。
2.J9.COM厂品严谨安装ISO9001香港国际效率管理体系设计构思制作,感测器器厂品整机质保一年期期2年.义表类厂品整机质保一年期期6年,7天换货货,一生修理。(关键在于伤害没有在整机质保一年期期空间,设计厂品无效率间题不降不改。)3.因质量问题造成的退换货,J9.COM将承担退换货运费。非质量问题退换货费用将由客户承担。
注:质量问题是指功能,尺寸、指标、安装方式等定制参数未按照客户提出的要求定制,功能不符,尺寸误差,精度不准(误差范围内除外)。
定制产品需双方确认图纸后加工生产,如产品不符合客户要求需在二周内提出书面异议,客户未按规定期限提出异议视为验收合格。
如在期限内提出异议,双方确认后确属产品质量问题或未按双方确认后的要求生产,可调换或退款。如无质量问题,且发货型号与合同签订型号完整无误,则不提供退换货服务。
售后咨询
能力咨讯、返厂检修、单据、客户投诉提议等有关方面。售后维修售后服务售后服务电活021-51601181
企业公司群众号
企业的抖音小视频号
商家视频播放号
中小企业手机微博
企业小丽书