扭矩传感器的分类及安装使用方法
扭矩传感器,又称力矩传感器、扭力传感器、转矩传感器、扭矩仪,可分为动态和静态两大类,其中动态扭矩传感器又可叫做转矩传感器、转矩转速传感器、非接触扭矩传感器、旋转扭矩传感器等。
(一)转矩感应器器的两个划分
动态扭矩传感器是一种测量各种扭矩、转速及机械功率的精密测量仪器。应用范围十分广泛,主要用于电动机、发动机、内燃机等旋转动力设备输出扭矩及功率的检测;风机、水泵、齿轮箱、扭力板手的扭矩及功率的检测;铁路机车、汽车、拖拉机、飞机、船舶、矿山机械中的扭矩及功率的检测;污水处理系统中的扭矩及功率的检测等等。
静态扭矩传感器是根据电阻应变原理把扭转力矩产生的应变转换成与其成线性关系的电信号的仪器,该产品制造工艺成熟,品种齐全,量程范围广,精度高,性能稳定可靠。

(二)转矩感应器器的装置食用工艺
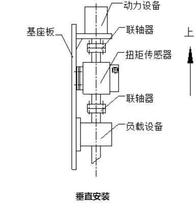
1、扭矩传感器可水平安装,也可垂直安装
2、动力设备、传感器、负载设备应安装在稳固的基础上,以避免过大的震动,否则可能发生数据不稳,降低测量精度,甚至损坏传感器。
3、采用弹性柱销联轴器或刚性联轴器连接。
4、传感器中间部份不可刚性固定,要采用柔性连接
5、动力设备、传感器、负载设备轴线的同心度应小于Φ0.03mm。
6、传感器在垂直使用时输入端与输出端要有支撑隔板使传感器不会受到动力源和负载的重力作用,已保测量精度。


另一方面用发动机功率调节器器时,更要注重下两个事宜:
1. 但如果请求传输软件的心轴不因按装了感应器器而增长,则能致用智能化齿轮轴承--既可监测发动机功率,又可负责齿轮轴承的作用。也即是一类带监测作用的齿轮轴承。
2. 被测链传动体系不可不能够 加宽但可不能够 拆开时,则可不能够 用到套组式转距传感应器器--套在被测轴上即刻各种测试。
3. 被测传动体系体系既不不得加厚又难以以拆下时,则会在使用在施工现场拆卸的卡装式力矩调节器器。从轴的两边卡在轴上就可实现考试。就可长时间探测也可短期内监测。与电流值钳形表相似性。
4.有的试验软件体统既包含扭矩又有载荷力时则还还可实用传动比转数载荷力三参数指标感应器器;既还还可尽量避免载荷力对扭矩试验软件的影响又还还可在测量载荷力的4g信号。
5.在高时速或超标时速下检查时能够便用无滑动轴承式电动机扭矩时速传调节器器。
6.如若被测体统为不扭动心态时是可以选择转距调节器智能变送器。
7.如被测设计大值在5mN·m至1N·m时也可以运行极少量程起动转矩发动机转速感知器。
单位消费者号
企业公司快手号
工厂短视频号
企业消息
品牌微博书